Projects

Kavel 9

Year: 2019-2020
Type: private commission
Location: Delft, The Netherlands

In collaboration with:Rohan Varma, Gonzalo Zylberman

Kavel 09 is a single-family house that is currently under construction as part of a larger mixed-use urban renewal project located in the centre of Delft. To maximise daylight as well as the narrow frontage of the plot, the design takes the formof three successive bays. In this configuration, titlethe central inner bay serves as the service zone accommodating the elevator shaft, stairwell and bathrooms. The two outer bays at either end contain living and sleeping zones with bay windows of various sizes that offer sweeping views of the park and historic city centre of Delft.

Responding to the needs of the client, the house rises six floors with an layout that allows for ample space for a home office on the lower two levels, private studios on the first floor and more private bedrooms and living spaces on the upper three floors. An open-to-sky terrace with a heated swimming pool top the 351 sqm project.

Two other aspects guided the design of the project: a desire to combine centuries-old local building materials such as brick with twenty-first-century sustainable materials through the use of cross- laminated timber (CLT).

The project was designed and constructed in less than 18 months and which responds to the climate and culture of building in Delft with the aspirations of a young expat family eager to make a home for their growing family.

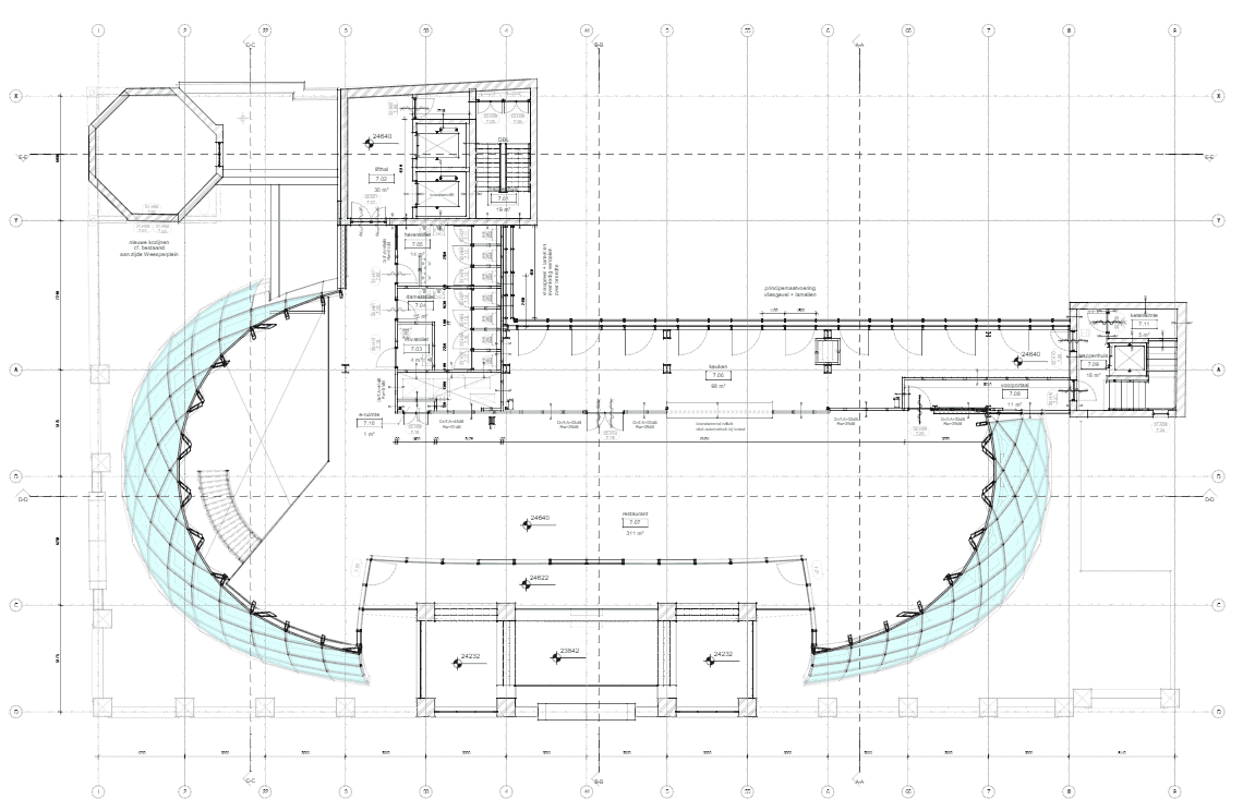
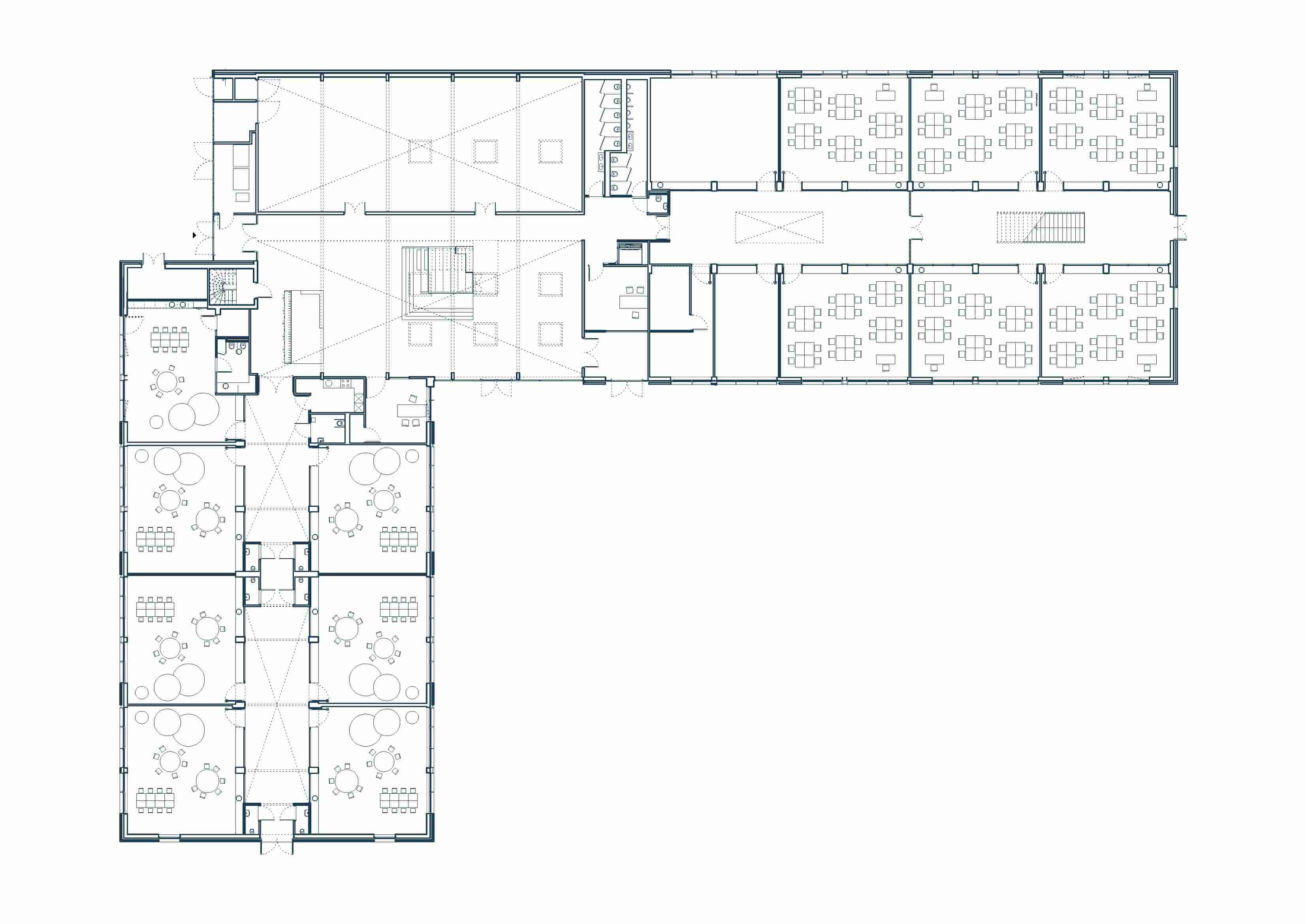
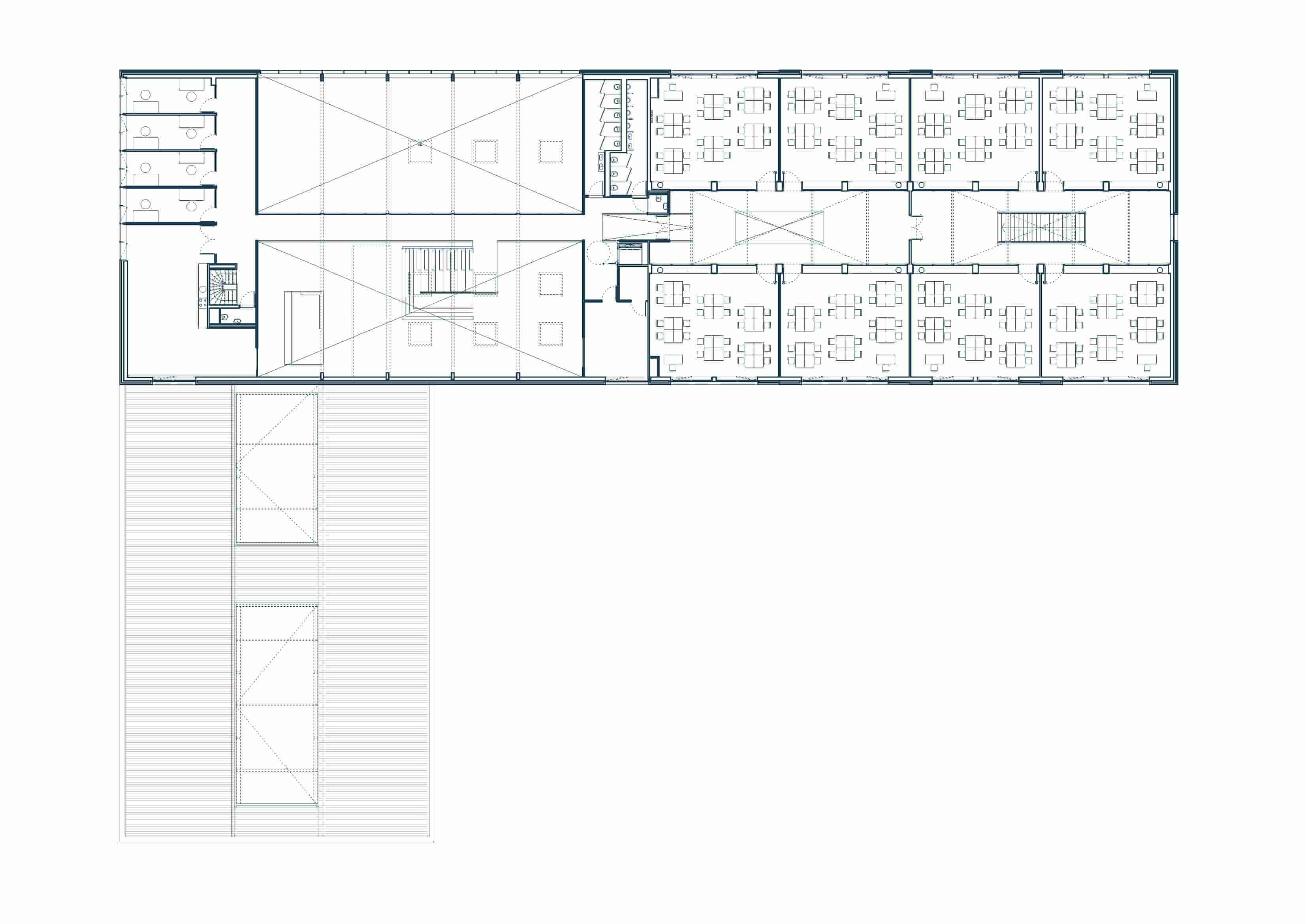
WDZ School

Year: 2019-2020
Type: professional work with MIR architecten
Location: Hendrk-Ido-Ambracht, The Netherlands

The design for a school with 22 classrooms, assembly hall and 3 large children's playrooms is the result of a painstaking optimisation process to integrate both structural system and spatial requirements into a simple, L-shaped volume. The classrooms of the smaller children are accommodated in the lower wing, the classrooms for the older children are situated in the higher wing.

DenCity

Year: 2017
Type: Competition, Special Mention
Location: Mumbai, India

In collaboration with: Rohan Varma and Orville Monteiro

Informal settlements across Mumbai suffer from an incredible lack of infrastructure. Unfortunately, the current policy for slum improvement in the city focuses solely on the production of houses, with little to no regard for the provision of other facilities that people so crucially require.

Rather than resort to the typical master plan that involves primarily the construction of new housing, the project idea was to take a closer look at the site and address its problems of social and physical infrastructure through a series of small interventions and the testing ground is an informal settlement that sits at the very heart of Mumbai’s financial district.

After analysis of the site and mapping its land-use, level of amenities and physical infrastructure, the identification of additional amenities was possible. Depending on the need, these would either be at the periphery of the site, or located more towards its inner lesser-accessible pockets. In either case, the attempt was to respond to the existing geography of the site and its intricate layout of streets and pathways.

At a more architectural scale, the challenge was to develop structures that would sit delicately within the site and respond well to its immediate surroundings.

Shenzen

Year: 2017
Type: Competition, Special Mention
Location: Mumbai, India

In collaboration with: Rohan Varma and Orville Monteiro

Informal settlements across Mumbai suffer from an incredible lack of infrastructure. Unfortunately, the current policy for slum improvement in the city focuses solely on the production of houses, with little to no regard for the provision of other facilities that people so crucially require.

Rather than resort to the typical master plan that involves primarily the construction of new housing, the project idea was to take a closer look at the site and address its problems of social and physical infrastructure through a series of small interventions and the testing ground is an informal settlement that sits at the very heart of Mumbai’s financial district.

After analysis of the site and mapping its land-use, level of amenities and physical infrastructure, the identification of additional amenities was possible. Depending on the need, these would either be at the periphery of the site, or located more towards its inner lesser-accessible pockets. In either case, the attempt was to respond to the existing geography of the site and its intricate layout of streets and pathways.

At a more architectural scale, the challenge was to develop structures that would sit delicately within the site and respond well to its immediate surroundings.

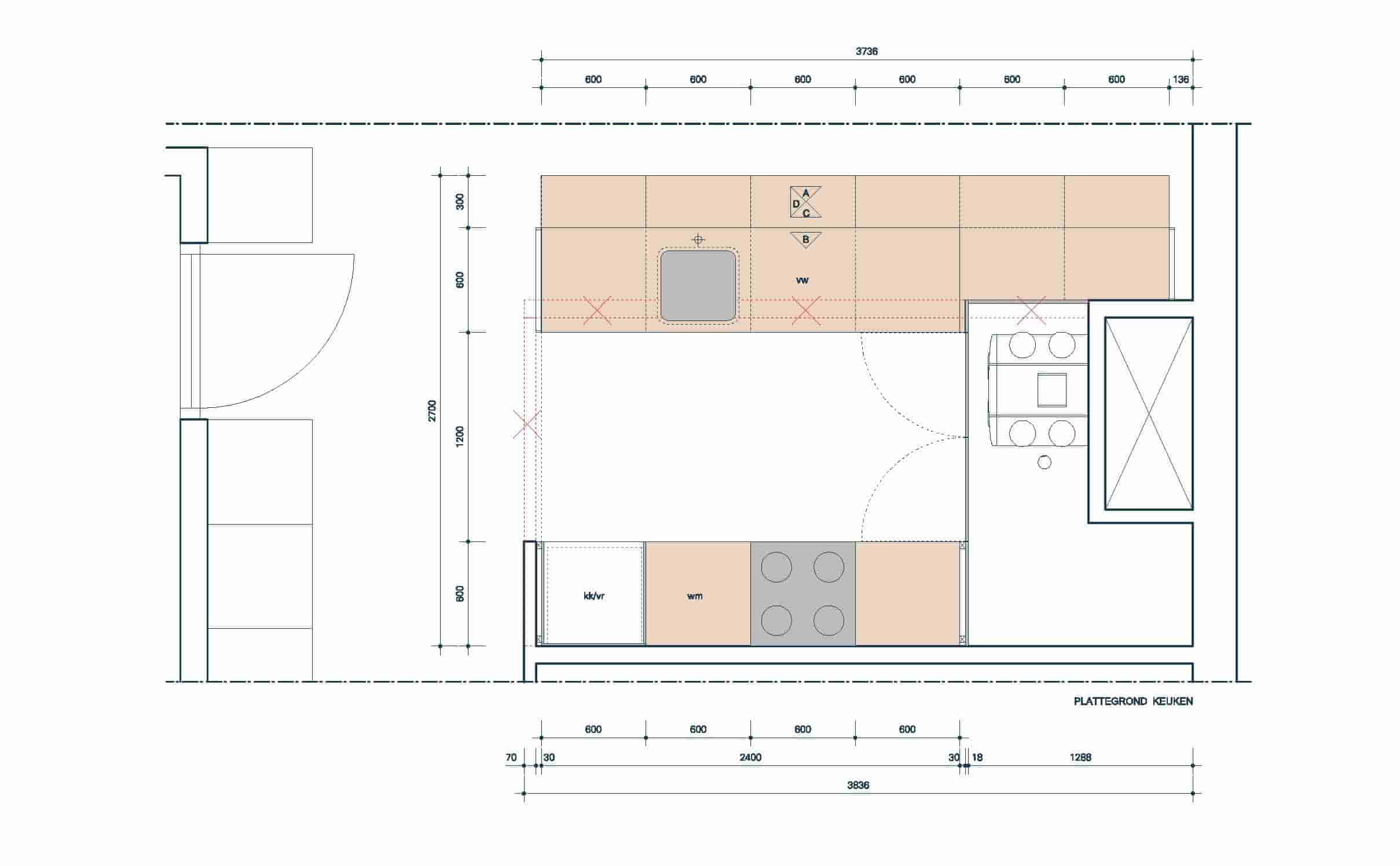
Houthavens Amsterdam

Year: 2020
Type: Professional Work with MIR architecten
Location: Amsterdam, The Netherlands

The project included interior design of a small apartment in Houthavens in Amsterdam. The clients love to entertain people and cook for them, that is why special attention was put into the design of a kitchen which was customs made and designed to the smallest detail. The cabinet by the entrance was designed to combine a wardrobe, sitting place and a board with holes behind it works as a multifunctional hanger. In all designed elements bold contrasting colours and materials bring to mind vibrant 50’s retro style with a modern twist, which clients are especially fond of.

Capital C

Year: 2019
Type: Professional work with Zwarts&Jansma Architects
Location: Amsterdam, The Netherlands

The building, designed by Gerrit van Arkel in 1911, is powerful and idiosyncratic. Due to its special belfry and rhythmic structure, the building has an energetic relationship with its surroundings. It is a classical Amsterdam building, and was obviously declared a national monument. But after several additions, a fire and a number of renovations, there is too little left of the original monument. In order to make a step forward, the original façade of the Diamond Exchange was mostly restored, giving it back its unique features.

The largest addition consists of the event space and the terrace on the seventh floor, under an oblong dome. The construction on the roof is based on the grid shell principle, in which the constructive force is absorbed by the double curvature in the roof’s surface. That allows for an enormous freedom in shapes and a large span without columns. The dome’s structure, covered with glass panels is transparent, light and open. By raising the floor on the sixth level the dome can appear even more free and slender. The addition stands free from the bell tower and is built well inside the original facade. Seen from the street the relationship between old and new are evident: the Diamond Exchange takes the spotlight and the dome is a supporting addition. The new public space makes a transparent and inviting gesture, reflecting light and sky in all directions.

Serendipity Barefoot School of Crafts

Year: 2018
Type: Competition, First Prize, in collaboration with Rohan Varma and Orville Monteiro
Location: Goa, India

The proposal for the Serendipity Barefoot School of Crafts takes inspiration from typical Goan architecture one can find throughout the state. The “Balcao” – a verandah-like space, the courtyard and sloping roofs are found not just in people’s homes but also in public buildings. The intention is to refer to these age-old elements, but in a contemporary manner.

The design is focused on two main crafts – cane furniture and pottery. Both these find a place in Goa’s culture, but one that is rapidly diminishing. While it is our intention to provide workshop spaces for learning and production of these crafts, it is also our aim to design a pavilion that uses only locally found materials in a manner that is sustainable, while also exhibiting the potential of local unskilled labour found in the region.

Urban enclave

Year: 2016
Type: Academic, Master Degree Diploma, Nominated for Diploma of The Year in Poland
Location: Wrocław, Poland

How could we meet the expectations and aspirations of a high-density development which is also a safe and comfortable place to live? Christopher Alexander in his book ‘A Pattern Language’ encourages the creation buildings that can be partly closed, but at the same time provide access. It refers to the basic human instincts, that make man subconsciously looking for places where they can find shelter and rarely chooses for resting free spaces. The project proposes an alternative to one of the quarters built on the Przedmieście Oławskie in Wrocław, where such an area could not be created due to the proposed Local Development Plan.

After a thorough analysis of the site, its needs and requirements, the proposed building takes the form of a megastructure that seamlessly fits into surrounding city tissue and heavily draws on the context of its location. Numerous courtyards, connected by streets and pathways are filled with different kinds of landscape giving residents ample options for places of recreation and meeting. The building meets the need for diversity in the city and offers accommodation for a range of inhabitants, from studios for young professionals to larger apartments and townhouses for multi-generational families.

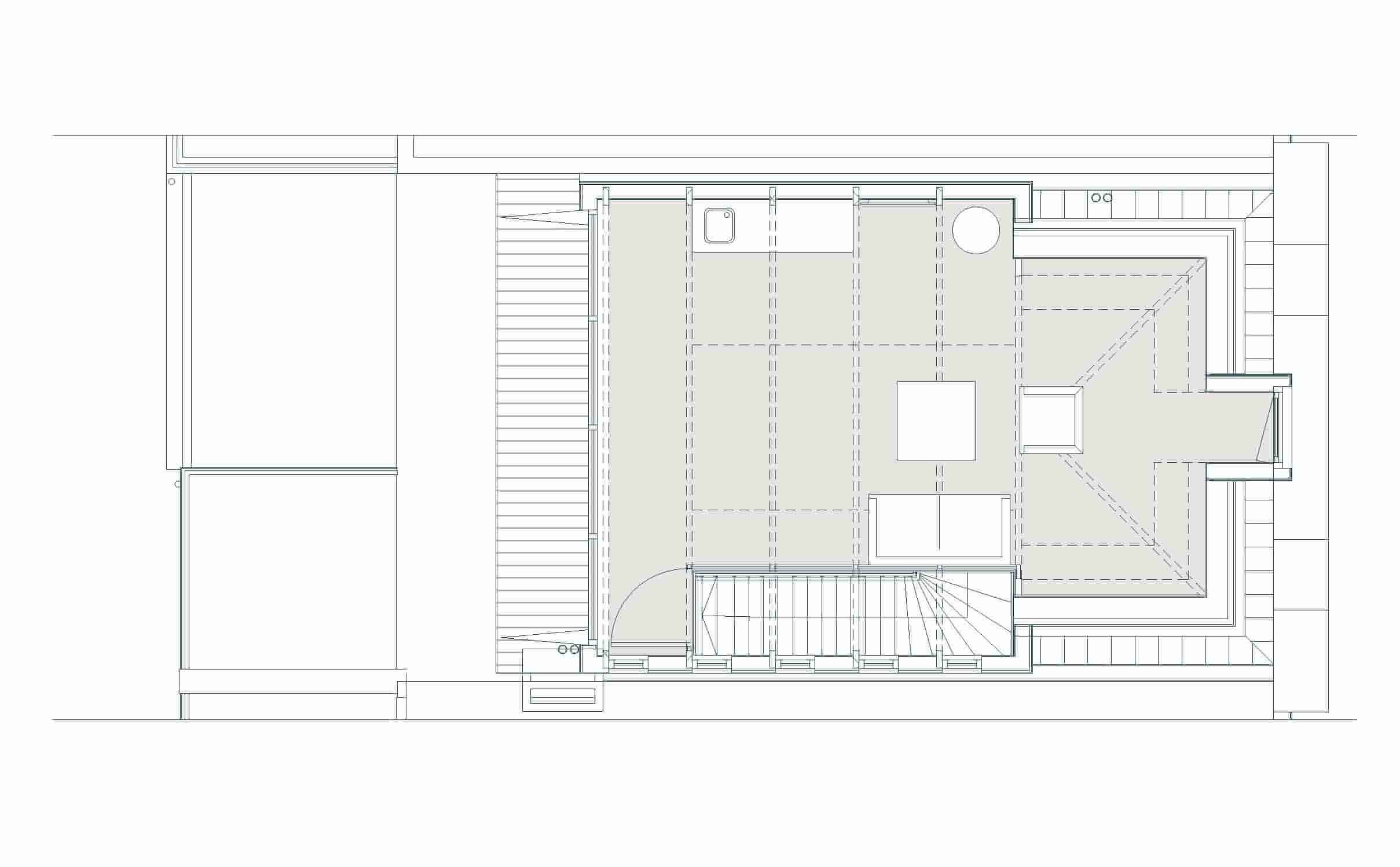
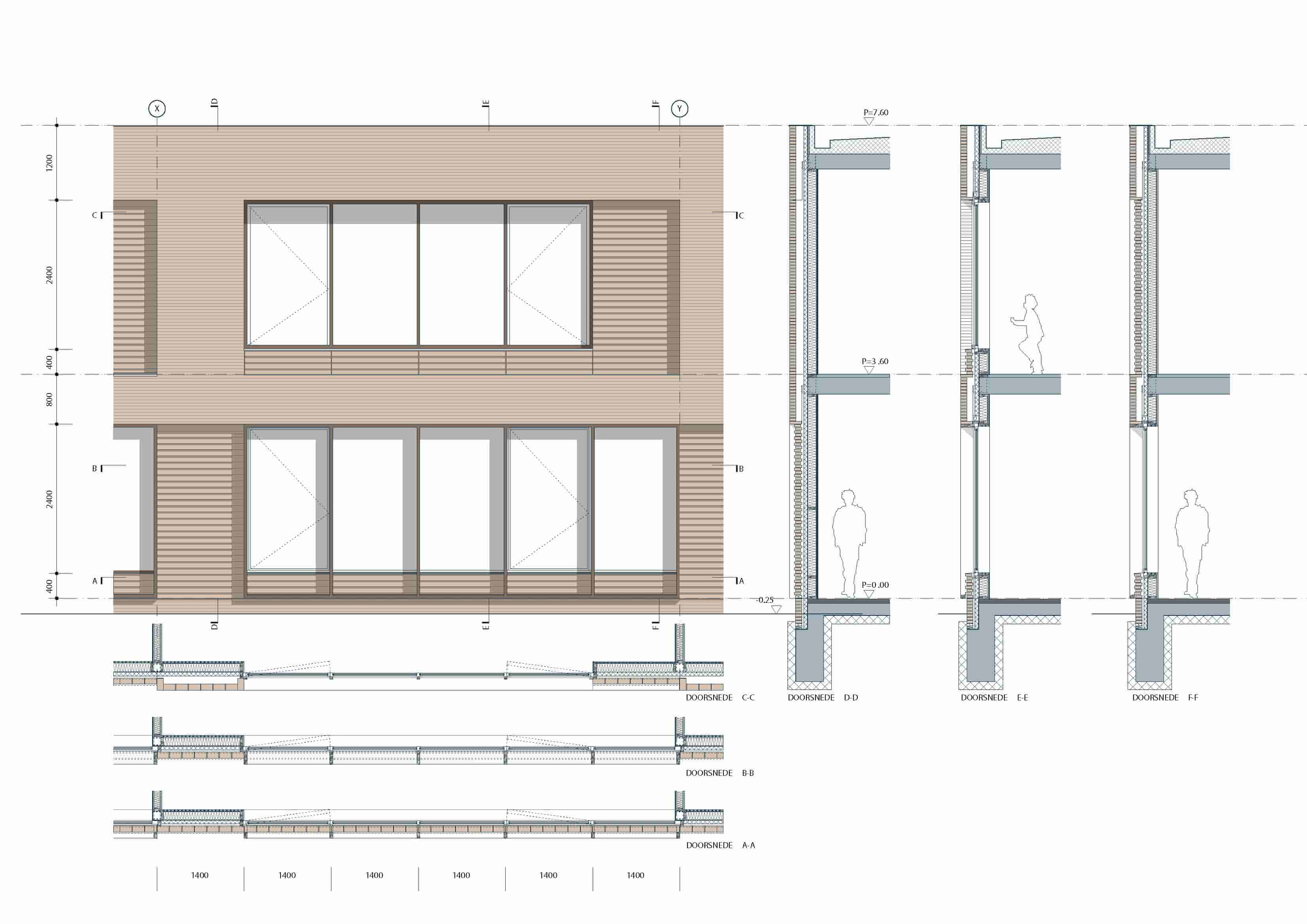
Pippelingstraat

Year: 2021
Type: Professional work in collaboration with Vincent Kuijer.
Location: The Hague, The Netherlands

The object of the design was to create a sunny room on top of the existing townhouse. The clients own the whole building, but the living-room is located on the ground floor and rarely gets any direct sunlight.The area is under strict beauty committee guidelines and it was important to follow the roofscape of the neighbouring buildings. The form of the roof is traditional but due to the big openings and modern materials it remains contemporary in style. The interior is one big open space with a small kitchenette that allows for maximum flexibility.

Shutter Green Dreamworks Factory

Year: 2021
Type: Professional work with Mecanoo, a competition for a plastic containers factory.
Location: Nau-Tou, Taiwan

The project for a factory is located on a hill facing a town. The idea of the project is to design a sustainable and ecologically friendly building, that contains an office area and space for production of plastic elements. Those two main functions are placed under one roof but yet separated in two volumes for the sake of comfortable working conditions. However, the possibility of connection is essential, which results in bridges between different levels. The greenery is placed generously in the gap between these volumes and on the big terrace on the southern elevation of the building.